Apartament 2 camere panoramic
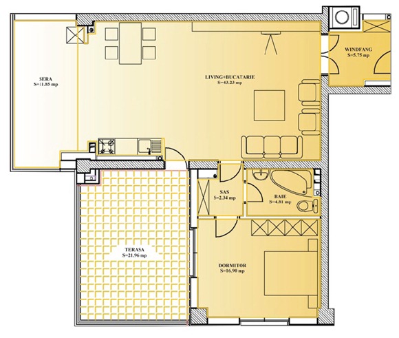
Pentru ca sunt in cautarea unui apartament, de 2 camere, prietenul Raca mi-a forward-at (fara sa o deschida) o oferta “de nerefuzat”. Schita apartamentului o aveti mai jos.
Apartamentul se afla in Orhideea Gardens si este la etajul 11.
Suprafata construita este 125mp iar cea utila 102mp.
Dupa o scurta privire pe site am gasit si o panorama 360 a apartamentului. Dementiala e imaginea de mai sus dar puteti vedea cu ochii vostrii mai mult aici.
Tot cautand pe acolo am gasit si cateva poze.
Prima este cu vedere din balcon:
Iar urmatoare cu vedere din living.

Singura problema a apartamentului, din punctul meu de vedere este pretul. 163.000 euro + TVA.
Un pret aberant. Acum cand toate preturile scad ei cer 200.000 euro pe un apartament de 2 camere. Pentru mine e prea mult, dar poate va place voua :)
Foarte frumos apartamentul. Daca ar avea suficenta mine incat sa-l dea la un pret mai pamantean ar si mai frumos. Oricum, daca nu s-ar punea problema banilor, as vrea sa locuiesc acolo :d
Asta e bun pentru cei care nu mananca acasa. Sau care nu fac mancare acasa. Bucataria in living e un concept american dar care nu prea se potriveste la noi. Sau se potriveste? Pretul e mare pentru ca zona nu e asa buna si pentru ca are doar o camera. La banii astia sunt case pe pamant cu curte maricica si cu mai multe camere.
… in multe blocuri noi am vazut balcoanele amenajate cu plante, umbrele, mobilier de gradina, doar, doar pacalesc pe cineva ca sunt apartamente ocupate.Deci, nu!
Aparatmentul ca apartamentul ;) da ce scria pe verighetele alea ca m-am saturat sa astept :-? daca nu e cu numerele cistigatoare la loto pentru ca sa-l cumperi eu le-as grava din nou[-(
terasa si panorama fac toti banii, e frumos!
pretul … depinde de zona. unde e apartamentul ?
Aceste apartamente, dupa parerea mea, nu sunt de vanzare. Un alt exemplu ar fi la inCity residentials unde am vorbit cu un agent de vanzari care imi spunea ca are peste 100 de apartamente nevandute, dar nu scad pretul.
Apartamentul este superb insa pretul intr-adevar e piperat.
Buna,
Am eu de vanzare (nu sunt agent imobiliar sau ceva de genul) un ap de 2 camere in Floreasca (langa patinoar). Are 47 mp (mic, cam asa sunt toate casele in zona)..
Etajul 11? Nu cumva e la mansarda?
Am vazut doua apartamente similare la mansarda, o mansarda pe 2 nivele, nivelul de jos figurand in acte ca apartament si fiind facut cu structura metalica (stalpi de beton) si cu ziduri din BCA (deci nu ziceai ca e mansarda, inclusiv ziduri de bca intre camere.
Nivelul de sus era propriuzis mansarda, adica, pereti de tabla izolati cu vata de sticla si peretele interior din rigips.
Daca acest apartament e la mansarda cum am vazut eu atunci chiar nu face banii, oricum cu 200k iti faci casa.
Prin unele zone ale tzarii iti iei cu 40k o casa la rosu, si cred ca asta e cea mai buna solutie, o camera si baia sa le ai facute, restul le faci pe parcurs cum ai bani. Valabil in provincie, la Bucuresti e mai nasol cu casa ca pamant ieftin gasesti la periferie si sa pierzi 2 ore pe zi cu naveta, cam nasol, da stiti voi asta mai bine…
Inca ceva, suprafata e de 74 aproximativ, nepunand la socoteala sera si terasa. Cam putin pt pretul asta.
Wow, m-am uitat prima oara sa vad daca nu e scris articolul in 2007 sau 2008.
e foarte scump.